
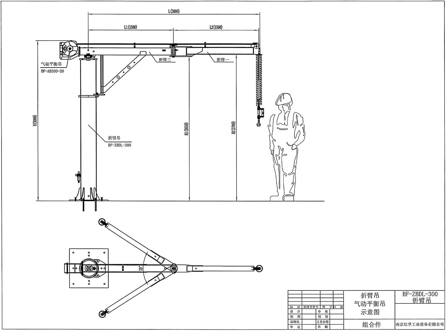
BF-ZXBL-300
折臂吊型号:BF-ZXBL-300
BF:比孚公司首字母拼音缩写
ZXBL:折臂吊
300:额定载荷
项目 | 性能指标 | 单位 |
型号 | BF-ZXBL-300 | 折臂吊 |
额定载荷 | 0-300(可根据客户需求定制) | kg |
总高度 | H(可根据客户需求定制) | mm |
折臂一下沿到地面 | H1(可根据客户需求定制) | mm |
折臂二下沿到地面 | H2(可根据客户需求定制) | mm |
机械臂总长 | L(可根据客户需求定制) | mm |
折臂一长 | L1(可根据客户需求定制) | mm |
折臂二长 | L2(可根据客户需求定制) | mm |
工作旋转覆盖范围角度 | 360° | 度 |
配30°可调限位 | 度 | |
工作级别 | A3 | |
运行方式 | 手动 |
新能源动力设备,人机工程学装卸系统
折臂吊
折臂吊起重机具有结构新颖、伸屈自如、操作灵便、高效节能等特点。利用折臂一与折臂二作弯曲和旋转运动,在控制工作区域内避让物体,使工作区域最大化。特别在设备稠密、短距离吊运、作业频繁的生产线上应用折臂吊起重机更能提高生产效率和降低生产成本。
工作原理:
折臂吊是属于轻型工作强度起重机,由立柱、折臂一、折臂二、回转驱动装置及提升机组成。具有自重轻、跨度大、利用气动平衡吊或气动葫芦起吊工件或重物。
悬臂吊优点与特性:
1、折臂吊可以弯曲,折叠,节约空间。
2、机械臂可选方形钢材质轨道。
3、回转角度0-360度
4、安装方便,快捷。