
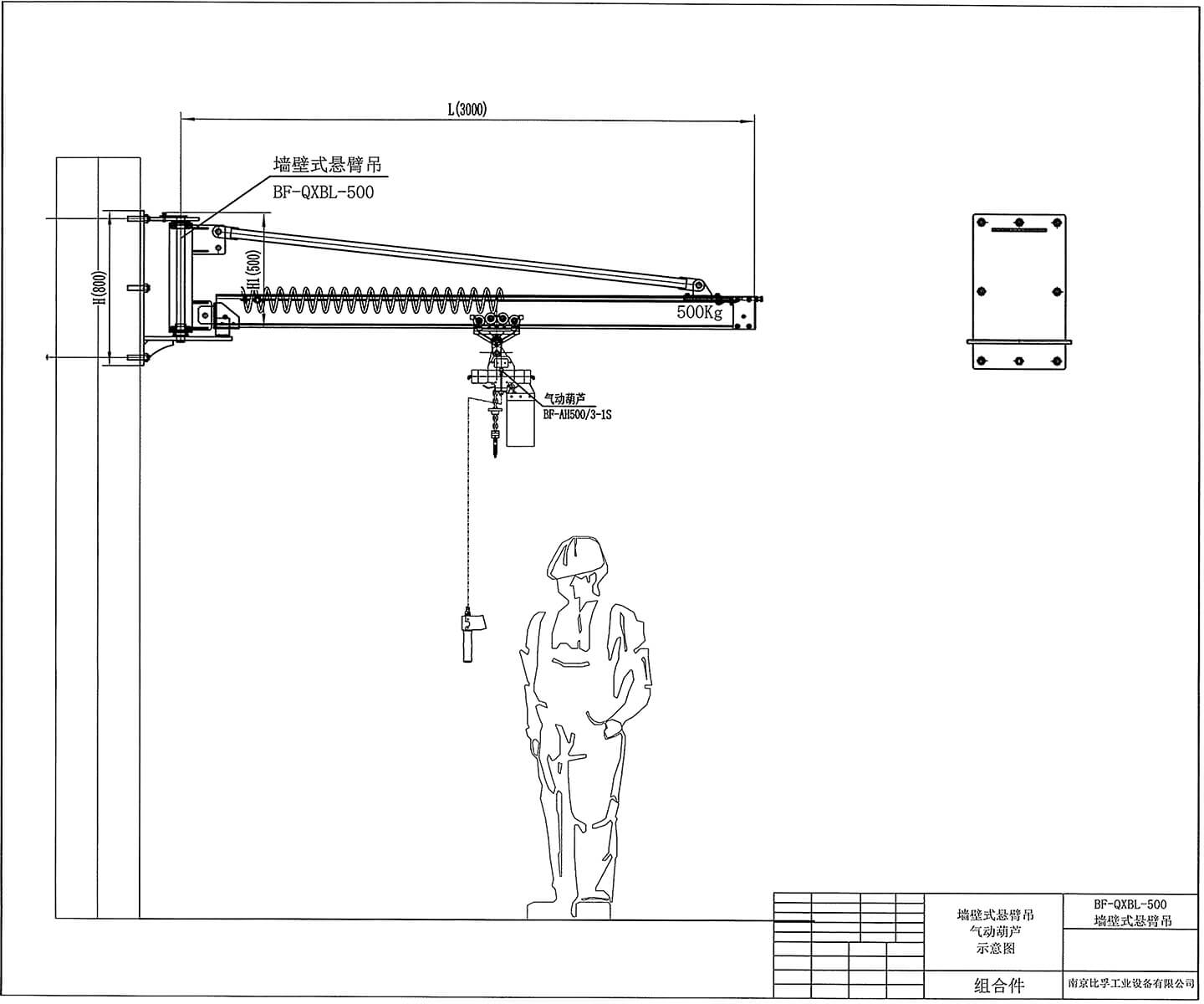
BF-QXBL-500
墙壁式悬臂吊型号:BF-QXBL-500
BF:比孚公司首字母拼音缩写
QXBL:墙壁式悬臂吊
500:额定载荷
| 项目 | 性能指标 | 单位 |
| 型号 | BF-QXBL-500 | 墙壁式悬臂吊 |
| 额定载荷 | 0-1000(可根据客户需求定制) | kg |
| 总高度 | H(可根据客户需求定制) | mm |
| 机械臂长 | L(可根据客户需求定制) | mm |
| 墙壁头到机械臂下沿 | H1(可根据客户需求定制) | mm |
| 工作旋转覆盖范围角度 | 180° | 度 |
| 配30°可调限位 | 度 | |
| 工作级别 | A3 | |
| 运行方式 | 手动 |

新能源动力设备,人机工程学装卸系统
墙壁式悬臂吊
墙壁式悬臂吊定义:
墙壁式悬臂起重机是在立柱式悬臂起重机的基础上研制的一种新型物料吊运设备。该机行走道轨安装在厂房的水泥柱、钢柱或者承重梁上。围绕着水泥柱做圆周运行,同时气动平衡吊或者气动葫芦又可完成沿悬臂轨道做横向运动以及垂直方向的起吊,有效的利用厂房空间。
工作原理:
墙壁式悬臂吊是属于轻型工作强度起重机,由回转机械臂、回转驱动装置及提升机组成。具有自重轻、跨度大、手动运行在悬臂上作左右直线,旋转运行,利用气动平衡吊或气动葫芦起吊工件或重物。
墙壁式悬臂吊优点与特性:
1、可根据客户需求定制墙壁式悬臂吊高度、机械臂跨度等尺寸。
2、机械臂可选铝合金、KBK、工字钢等材质轨道。
3、回转角度0-180度
4、安装方便,快捷。